HighgateTp Profile Banner
Highgate Transportation Profile
Highgate Transportation

@HighgateTp

Followers
3
Following
20
Media
13
Statuses
18

Transport Planning Consultants

Joined August 2014
Don't wanna be here? Send us removal request.
@HighgateTp
Highgate Transportation
2 years
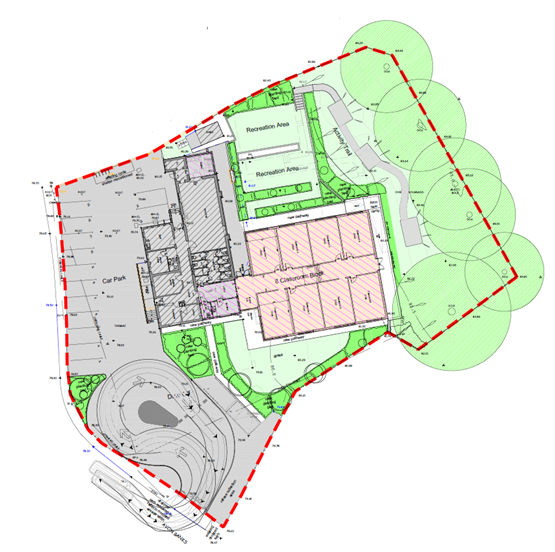
HTp provided specialist advice in support of a planning application at the former St Michael’s School in Figheldean. Permission has been granted for eight classrooms to support children, young people, and adults with special educational needs and disabilities. Well done Team!
0
0
0
@HighgateTp
Highgate Transportation
2 years
Well done team! Another planning application approved. Change of use from retail units to residential dwellings. We’ve provided highway support that demonstrated a car-free development was appropriate at this location. @StCatherine’s Place in Bedminster, Bristol
0
0
0
@HighgateTp
Highgate Transportation
3 years
HTp are proud to announce that Papworth Hall in Cambridgeshire, was granted planning permission for change of use from offices to a day school for up to 30 children, young people, and adults with special educational needs. #TransportStatement #TravelPlan, #sweptpathanalysis
0
0
0
@HighgateTp
Highgate Transportation
3 years
This one took a lot of negotiation – HTp are so pleased to have supported a planning application to change the use of a suite of offices known as Studio 40 in, Hampshire from offices to a day school for up to 50 children, young people, and adults with special educational needs.
0
0
0
@HighgateTp
Highgate Transportation
3 years
Well done team! Another planning application approved. Change the use of Unit C, Burton upon Trent from general industrial/storage and distribution to a vocational training centre which will act as a satellite to Longdon Special Educational Needs School for around 30 students.
0
0
0
@HighgateTp
Highgate Transportation
3 years
@BristolCouncil
Bristol City Council
3 years
Planning a journey but need to check roadworks won’t slow you down? Go online to: ✔️ sign up for personalised travel updates ✔️ find out which roads will be closed for events ✔️ report inactive roadworks Find out more 👉 https://t.co/atbE2wZLJh
0
0
0
@HighgateTp
Highgate Transportation
3 years
We’re pleased to support & be members of @GoodEmpCharter as we strongly believe in everything it stands for. It is an opportunity to improve employment standards; operating fair people practices, providing a commitment to health and wellbeing, and opportunities for all.
0
1
1
@HighgateTp
Highgate Transportation
3 years
We Are Hiring! If you are interested, give us a call on 07595 892217 or email HTp@highgatetransportation.co.uk #joinus #jobopening #hiring #bristol #transportplanning #team #newjobopportunity
0
2
0
@HighgateTp
Highgate Transportation
3 years
Great start to 2023! HTp are pleased to have supported the successful application for the proposed change of use of existing agricultural barns to the rear of The Wayne, Fyfield, Andover, to five residential dwellings under Class Q Permitted Development Rights (PDR) #development
0
0
0
@HighgateTp
Highgate Transportation
3 years
We Are Hiring! If you are interested, give us a call on 07595 892217 or email HTp@highgatetransportation.co.uk #joinus #jobopening #hiring #bristol #transportplanning #team #newjobopportunity
0
2
0
@HighgateTp
Highgate Transportation
3 years
From the entire team at HTp, have a Merry Christmas and a prosperous New Year. It's been an absolute pleasure working with you during the past 12 months, let's make 2023 even better. Best wishes for the holiday season.
0
0
0
@HighgateTp
Highgate Transportation
3 years
Fantastic news to end 2022! HTp are pleased to have supported our client for the change of use of an agricultural barn in Oakhanger, East Hampshire, to commercial use under Class R(C) Permitted Development Rights. Great to support growth in rural communities with @FredrickAdamLtd
0
0
0
@HighgateTp
Highgate Transportation
3 years
Further congratulations are in order for our team member here at @HTp Gisele Careta who is the Bus Champion and won her own prize in the Active October Challenge!! @BristolCouncil
0
0
0
@HighgateTp
Highgate Transportation
3 years
It is with great pleasure that we can announce Highgate Transportation came first in the Active October Challenge. Well done team – great effort! The team won £50 to be donated to charity. #BristolActiveOctober @BristolCouncil
0
0
1
@HighgateTp
Highgate Transportation
3 years
It is certainly beginning to feel a lot like Christmas with this fabulous view from our office on Park Street, Bristol... The lovely lights are brightening up our autumnal evenings as we head into Winter.
0
0
0
@HighgateTp
Highgate Transportation
3 years
What a busy start to the Christmas season here at HTp! We are very pleased to welcome our newest team member Dave Bulloch, as Graduate Transport Planner. Congratulations on your new position and a warm welcome from the whole team here at @HTp.
0
0
0
@HighgateTp
Highgate Transportation
4 years
HTp celebrate all women in the transport sector on #IWD2022 & everyday. Women currently make up 20% of the transport sector. With this year’s theme being “Gender equality today for a sustainable tomorrow” there is a lot to do before we #BreakTheBias How will you #BreakTheBias?
0
0
0
@MonmouthshireCC
Monmouthshire / Sir Fynwy
4 years
Severn Tunnel Junction station access https://t.co/B735go6iaB
0
1
0