Lewis_Architect Profile Banner
Lewis Partnership Architects Profile
Lewis Partnership Architects

@Lewis_Architect

Followers
977
Following
293
Media
658
Statuses
1K

We are a Sustainability Focused Architects practice who take pride in building partnerships with our clients #Llanelli Est 1995.

Llanelli, South Wales, UK.
Joined December 2011
Don't wanna be here? Send us removal request.
@Lewis_Architect
Lewis Partnership Architects
9 months
Exciting progress on Llanelli’s new Community Hall at Penyfan Park! The foundation slab & drainage are nearly complete, @penfro_consult (drone photos) https://t.co/juOBHu2DOW #Llanelli #CommunityHall #BuildingForTheFuture #ExcitingTimes
0
0
1
@Lewis_Architect
Lewis Partnership Architects
9 months
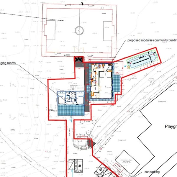
Planning application for a large extension to a community building in Tumble, Llanelli This project will provide much-needed new sports changing rooms as well as enhanced community facilities #Tumble #Llanelli #CommunityGrowth #SportsForAll https://t.co/juOBHu2DOW
0
0
1
@Lewis_Architect
Lewis Partnership Architects
11 months
Works are well under way to convert this existing former pub into assisted living residential units @TADBuilders @CarmsCouncil #architecture #design #llanelli #architect #construction #EWI #improvements #assistedliving #upgrade #repurpose https://t.co/hHqlIVVyjf
0
0
2
@Lewis_Architect
Lewis Partnership Architects
11 months
Works have commenced on site for the new Community Centre at Penyfan Park. Drilling/ grouting works should be complete shortly #architecture #design #llanelli #architect #construction #Community #stabilisation #drilling #grouting #Modular #improvements https://t.co/hHqlIVV0tH
0
0
1
@Lewis_Architect
Lewis Partnership Architects
1 year
Many thanks to Sue Longman of Etex Group, for presenting a very informative EQUITONE Facade CPD seminar to our staff members today. #cpd #ProfessionalDevelopment #Llanelli #Architects #design #rainscreen #FibreCement #sustainability
0
0
0
@Lewis_Architect
Lewis Partnership Architects
1 year
Site works are progressing well for 11 social housing dwellings in #Pembrokeshire for @ATEB Sterling Construction Ltd & Roger Casey Assoc #architecture #design #llanelli #architect #construction #residential #affordable #socialhousing #sustainability https://t.co/hHqlIVV0tH
0
0
0
@Lewis_Architect
Lewis Partnership Architects
1 year
Works are nearing completion to replace a defective concrete balcony together with new rainwater goods and repointing of brickwork @vaughanconstruction @millboard #architecture #design #llanelli #architect #construction #balcony #repairs #upgrade https://t.co/hHqlIVVyjf
0
0
0
@Lewis_Architect
Lewis Partnership Architects
1 year
Remedial works are continuing at this project in Hendy which requires the rebuilding of 6 openings and the inclusion of new stone surrounds Martin Taffetsauffer MW Consult Ltd #architecture #design #llanelli #architect #construction #remedial #maintenance https://t.co/hHqlIVV0tH
0
0
0
@Lewis_Architect
Lewis Partnership Architects
1 year
Maintaining the Continuous Professional Development of our staff is important. Many thanks to Angharad Pocock of @forboflooring for presenting a very informative CPD seminar to our staff yesterday. #CPD #ProfessionalDevelopment #Llanelli #architects #inclusivedesign #flooring
0
0
0
@Lewis_Architect
Lewis Partnership Architects
1 year
Remedial underpinning and other structural repairs have commenced at Llanerch Community Hall with Martin Taffetsauffer MW Consult Ltd Llanelli Town Council #architecture #design #llanelli #architect #construction #repairs #structural #foundations https://t.co/hHqlIVV0tH
0
0
1
@Lewis_Architect
Lewis Partnership Architects
1 year
Works have commenced for new disabled facilities bedroom and bathroom with @MHiornsbuildingcontractor MW Consult Ltd Cyngor Sir Gâr - Carmarthenshire County Council #architecture #design #llanelli #architect #construction #disabled #grant #improvements https://t.co/hHqlIVV0tH
0
0
1
@Lewis_Architect
Lewis Partnership Architects
1 year
We are very proud of our association with @phoenixtheatre. We thoroughly enjoyed the opening night's performance of Agatha Christie's And Then There Were None. Fine performances by the whole cast. #theatre #agathachristie #acting #Llanelli https://t.co/hHqlIVV0tH
0
0
1
@Lewis_Architect
Lewis Partnership Architects
1 year
6 months defects inspection completed at this great alterations and refurbishment project in Kidwelly. With @elijahhomesltd @mwconsult #architecture #design #llanelli #architect #construction #upgrade #improvements #openplanliving #naturallight https://t.co/hHqlIVVyjf
0
0
0
@Lewis_Architect
Lewis Partnership Architects
1 year
The new balcony structure is taking shape at this domestic project in Pembrey with @VghanConstruct @mikewyatt #architecture #design #llanelli #architect #construction #balcony #repairs #improvements Find out more on our website https://t.co/hHqlIVVyjf
0
0
0
@Lewis_Architect
Lewis Partnership Architects
1 year
Remedial works are underway to correct previous poor construction at a dwelling in Hendy with @martintaffetsauffer @mikewyatt #architecture #design #llanelli #architect #construction #repairs #maintenance Find out more on our website https://t.co/hHqlIVV0tH
0
0
1
@Lewis_Architect
Lewis Partnership Architects
1 year
Works are progressing well to replace a defective concrete balcony with a new steel design at #Pembrey @VghanConstruct @mikewyatt #architecture #design #llanelli #architect #construction #balcony #repairs #upgrade Find out more on our website https://t.co/hHqlIVV0tH
0
0
1
@Lewis_Architect
Lewis Partnership Architects
1 year
Many thanks to Simon Johnson of @SSQSlate for presenting a very informative CPD seminar to our staff members yesterday. #CPD #professionaldevelopment #Llanelli #Architects #design #naturalslate #phyllite #roofing
0
0
0
@Lewis_Architect
Lewis Partnership Architects
1 year
Works have commenced on a replacement balcony along with various other works on this property in Pembrey with @VghanConstruct #architecture #design #llanelli #architect #construction #balcony #refurbishment #improvements #Pembrey https://t.co/hHqlIVVyjf
0
0
2
@Lewis_Architect
Lewis Partnership Architects
1 year
Works have commenced and are progressing well for 11 new social housing dwellings in Jameston, Tenby. @ateb @stirlingconstruction @rogercasey #architecture #design #llanelli #architect #construction #tenby #socialhousing https://t.co/hHqlIVV0tH
0
0
1
@Lewis_Architect
Lewis Partnership Architects
1 year
Work is progressing well on the New Cancer Care Unit at Bronglais Hospital with John Weaver Contractors - LTD #architecture #design #llanelli #architect #construction #aberystwyth #improvements #Hospital Find out more on our website https://t.co/hHqlIVV0tH
0
0
0